O nas

Sprzedaż

Wynajem

Kontakt

Mieszkania na sprzedaż

Mieszkania na wynajem

Domy na sprzedaż

Domy na wynajem

Lokale na sprzedaż

Lokale na wynajem

Grunty na sprzedaż

Grunty na wynajem

Anna

 +48 790 780 991

 

Ewelina

 +48 790 839 823 

 

 

Polityka prywatności

© Girulska Nieruchomości -

Tyniec Mały, gm. Kobierzyce

DOM WOLNOSTOJĄCY

  1. pl
29 września 2025

Anna Girulska
790 780 991

Imię:
Twój email:
Wiadomość:
WYŚLIJ WIADOMOŚĆ
WYŚLIJ WIADOMOŚĆ
Formularz został wysłany
— dziękujemy.
Proszę wypełnić wszystkie
wymagane pola!

1 470 000,00 zł

| 151 m2 | 6 pokoi | 2025 r

 

 

 

 

*Nowy dom wolnostojący, 6 pokoi, rekuperacja, garaż w bryle.
*Bez PCC2%, Bez prowizji od Kupującego

 

Polecam na sprzedaż komfortowy dom wolnostojący – Tyniec Mały, gm. Kobierzyce. Po sąsiedzku znajdują się Bielany Wrocławskie, Ślęza, Domasław, Żerniki Małe. Dom sprzedawany w stanie deweloperskim, gotowy na styczeń 2026.

 

Dom znajduje się w cichej części Tyńca Małego i jest częścią bardzo kameralnej inwestycji. Wokół zabudowa jednorodzinna i dużo zieleni. Powierzchnia domu to 151,18 m2 i składają się na nią dwie kondygnacje bez skosów. Posadowiony na działce ok. 450 m2. Dodatkowo mamy żelbetowe schody dachówkę ceramiczną w kolorze czarnym, rolety elektryczne w każdym z okien na parterze i na piętrze.  

Niewątpliwą zaletą są też okna na klatce schodowej oraz wygodne schody bez zabiegów.

 

Dom posiada super funkcjonalny rozkład pomieszczeń, dla rodziny idealnie spełni swoją funkcję. Jest też pięknie wykończony z zewnątrz wraz z elementami oświetlenia oraz zagospodarowaniem terenu przewidzianym w standardzie wykończenia.

 

 

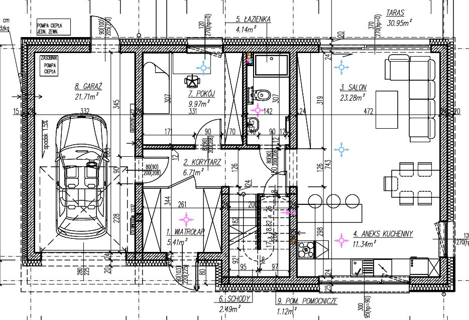
PARTER:

1. Salon z aneksem kuchennym ok. 35 m2

2. Pokój nr 1 ok. 10 m2

3. Łazienka ok. 4 m2

4. Wiatrołap 5,41 m2

5. Korytarz 6,7 m2

6. Garaż 21,71 m2

* Zapytaj o możliwość garażu dwustanowiskowego

 

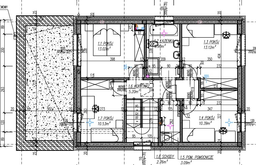
PIĘTRO:

1. Pokój nr 2 ok. 13 m2

2. Pokój nr 3 ok. 13 m2

3. Pokój nr 4 ok. 10m2

4. Pokój nr 5 ok. 10 m2

5. Łazienka ok. 7m2

6. Pralnia ok. 3 m2

7. Korytarz ok. 5 m2

 

Wysokie sufity, bo ok. 2,8 m na parterze dodają przestrzeni pomieszczeniom a duże okna doświetlają rewelacyjnie wnętrza. Wysokość sufitów na piętrze to ok. 2,6 m. Projekt domu to elegancka i nowoczesna bryła, która spełni oczekiwania wymagających i uprzyjemni użytkowanie tego eleganckiego domu.

 

Miejscowość Tyniec Mały to piękna i atrakcyjna wieś uhonorowana tytułem najpiękniejszej wsi Dolnego Śląska w roku 2024. Obecnie funkcjonuje bardziej jako prestiżowe osiedle na południu Wrocławia, punkt zainteresowań dla poszukujących oazy i odpoczynku od miejskiego gwaru. Wieś posiada doskonałą infrastrukturę, m.in.: nowoczesny Zespół Szkolno – Przedszkolny, przychodnię, aptekę, markety, usługi, komunikację autobusową, zabytkowy Kościół. W odległości około 1,5 km znajduje się stacja kolejowa linii Wrocław - Sobótka. Na aktywnych czeka dużo tras rowerowych i pieszych, także siłownia, boisko, place zabaw, miejsce spotkań przy ognisku. Bielany Wrocławskie lub Ślęza oddalone są o ok. 5 minut jazdy i umożliwiają korzystanie z kolejnych atrakcji typu skatepark, basen, zamek Topacz, muzeum motoryzacji, kino, fitness, galerie handlowe, itp.

 

 

 

Zapraszam do kontaktu,

Anna Girulska, tel. 790 780 991

 

TWÓJ POŚREDNIK Dobrzyniecka & Girulska Nieruchomości

 

 

 

 

 

 

 

 

 

 

 

 

 

 

 

 

 

 

 

 

 

Zapytaj o Kompleksową Obsługę Biura w Zakresie:
- kredytów hipotecznych,
- ubezpieczenia
- organizacji transakcji u notariusza

 

 

Przedstawione informacje nie stanowią oferty w rozumieniu prawa, lecz mają jedynie charakter informacyjny. Wszelkie dane dotyczące nieruchomości uzyskano na podstawie oświadczeń zamawiających. Zdjęcia i opisy w tej prezentacji stanowiącej ofertę nieruchomości objęte są ochroną praw autorskich majątkowych i osobistych, stanowią własność w świetle prawa autorskiego. Wykorzystywanie ich lub rozpowszechnianie bez pisemnej zgody autora, jest naruszeniem praw autorskich i pociąga za sobą odpowiedzialność prawną. Oferty podlegają okresowej aktualizacji - zadzwoń po szczegóły.